難波和彦+界工作舎
HOME 難波和彦 難波研究室
箱の家 PROJECT 青本往来記
コンセプト
最新情報
箱の家一覧
箱の家検索
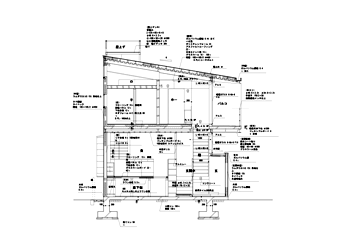
名称 箱の家 20

一覧分類 鉄骨造シリーズの展開

外観

内観

第一層

第二層

第三層

第四層

概要 夫婦と子供3人のための住宅である。敷地は浦和市内の閑静な住宅地にあり、東側を幅の狭い道路に面している。平面の大きさは5.4m×10.8mで、箱の家-7と同じ形だが、立体的な形と空間構成は全く異なっている。1階は半地下の地上部分を利用してスキップフロアとしている。台所・水廻り・食堂を地階RC上の同一レベルに置き、居間とのレベル差は90cmに抑え、水平方向の空間の一体感を損なわぬようにした。採光が東側道路からしか期待できないため、動線の中心である玄関ホールと吹抜け階段を道路側に置き、ここに光を集めた。食堂・台所はこの階段室に向け、中空ポリカの引戸を通して光を採り入れている。2階はホールと子供室を合わせて子供のスペースという考え方で、子供室の間仕切りは最小限にした。子供室をコンパクトにまとめるため、傾斜天井を利用してベットをロフトにしている。10.8m連続するバルコニーが2階の空間に広がり与えている。地階部分は鉄筋コンクリートの壁式構造である。その上に鉄骨フレームを載せている。スパン方向は偏心ブレース付ラーメン構造、桁方向はブレース構造である。道路斜線をクリアしロフト側の天井高をとるため、西側の軒高を高くしている。鉄骨は内部に露出し、2階の梁と天井デッキプレートはそのまま奥行き1.5mのバルコニーに連続している。屋上には建主の強い要望でデッキが設置され、シンプルな箱の中に6つの床レベルのある変化に富んだ空間ができあがった。

竣工年月 1997年10月
延べ床面積 163.1 平方メートル
工法 鉄骨造

次の箱の家 箱の家 21

▲TOP

Copyright (C) 2003 KAZUHIKO NAMBA+KAI WORKSHOP. All Rights Reserved.
No portion of this web site may be reproduced or duplicated without the express written permission.
This web site is written in Japanese only.