ÆñÇÈÏÂɧ¡Ü³¦¹©ºî¼Ë
HOME ÆñÇÈÏÂɧ ÆñÇȸ¦µæ¼¼
È¢¤Î²È PROJECT ÀÄËܱýÍèµ­
¥³¥ó¥»¥×¥È
ºÇ¿·¾ðÊó
È¢¤Î²È°ìÍ÷
È¢¤Î²È¸¡º÷
̾¾Î È¢¤Î²È 119

°ìÍ÷ʬÎà ¥µ¥¹¥Æ¥¤¥Ê¥Ö¥ë¥Ç¥¶¥¤¥ó¤ÎŸ³«

³°´Ñ

Æâ´Ñ

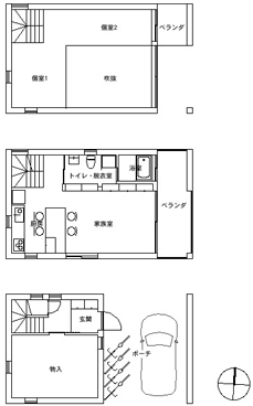
Âè°ìÁØ

ÂèÆóÁØ

Âè»°ÁØ

¥¢¥¯¥½¥á

½×¹©Ç¯·î 2006ǯ12·î
±ä¤Ù¾²ÌÌÀÑ 87.4 Ê¿Êý¥á¡¼¥È¥ë
Áí¹©Èñ 2860 Ëü±ß
¹©Ë¡ Å´¹ü¤

¼¡¤ÎÈ¢¤Î²È È¢¤Î²È 120

¢¥TOP

Copyright (C) 2003 KAZUHIKO NAMBA+KAI WORKSHOP. All Rights Reserved.
No portion of this web site may be reproduced or duplicated without the express written permission.
This web site is written in Japanese only.